Terrain à bâtir à
Gas (28320)
Prix du terrain
79 900 €
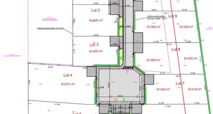
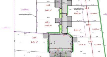
- Terrain de 401 m²
Référence : CDS2424122
L'agence Maisons France Confort de Coignières propose en partenariat avec un aménageur foncier ce superbe terrain, environnement calme, en fond d''''impasse, à 5mn de la gare d'Epernon (gare Montparnasse en 45 mn), commune très recherchée pour son calme et sa proximité des commodités (Epernon 5mn (gare, lycée, collège), Rambouillet 20 mn).
Terrain plat, vendu entièrement viabilisé, projet sur mesure à réaliser. Prix Hors droit d''''enregistrement et frais de notaire.
Pour d'avantage de précisions, un devis de construction personnalisé tout compris et une visite de ce terrain contactez sans tarder votre agence Maisons France Confort de Coignières.
Annonce proposée par un Agent Commercial Partenaire.
Mentions légales
Terrain proposé par un partenaire foncier selon disponibilités et autorisation de publicité et sélectionné par le constructeur en vue de construire une maison neuve avec un contrat de construction de maison individuelle, dans le cadre de la loi du 10/12/1990. Assurances et garanties du constructeur (RC professionnelle, décennale, dommage ouvrage, garantie de remboursement de l'acompte, livraison à prix et délai convenu) : https://www.maisons-france-confort.fr/mentions-legales/. HEXAOM Services est enregistré auprès de l'ORIAS en tant que Courtier en financement, Niveau 1, sous le numéro 14001345.
Agence
Maisons France Confort
de
Coignières (78310)
78310 Coignières