Terrain à bâtir à
Vernou-la-Celle-sur-Seine (77670)

Prix du terrain

80 700 €

  • Terrain de 339 m²

Référence : KM2430180

Vernou-la-Celle-sur-Seine (77670)
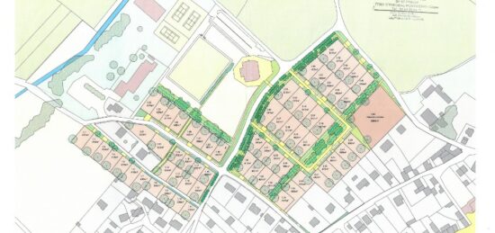
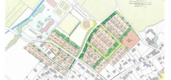
Dernier lot disponible dans le lotissement

Découvrez ce terrain à bâtir viabilisé de 339 m², offrant une façade de 17,80 mètres, idéal pour votre projet de maison individuelle.

Caractéristiques du terrain :

Surface : 339 m²
Façade : 17,80 m
Terrain viabilisé, prêt à bâtir
Dernier lot disponible dans le lotissement

Avantages financiers :

Frais de notaire réduits
Exonération de la PFAC
Exonération communale de la taxe d'habitation

Situation et accessibilité :

Gare accessible à 7 minutes à pied
Commerces, écoles et services à proximité
Environnement résidentiel et recherché

Prix : 80 700 €

Une opportunité rare pour construire votre maison dans un cadre agréable, avec des avantages financiers particulièrement attractifs.
Avec Maisons Balency - Groupe Hexaôm, premier constructeur de maisons individuelles en France, bénéficiez d'un accompagnement personnalisé pour concevoir la maison qui vous ressemble.
Nos constructions respectent la réglementation environnementale RE2020, garantissant performance énergétique, confort et durabilité.

Contactez dès maintenant notre agence d'Ormoy :
Maisons BALENCY - Agence d'Ormoy
23 chemin de Tournenfils, 91540 Ormoy
09 67 70 15 81


Terrain proposé par nos partenaires fonciers, sous réserve de disponibilité à la date de diffusion.

Annonce proposée par un Agent Commercial Partenaire.

Mentions légales

Terrain proposé par un partenaire foncier selon disponibilités et autorisation de publicité et sélectionné par le constructeur en vue de construire une maison neuve avec un contrat de construction de maison individuelle, dans le cadre de la loi du 10/12/1990. Assurances et garanties du constructeur (RC professionnelle, décennale, dommage ouvrage, garantie de remboursement de l'acompte, livraison à prix et délai convenu) : https://www.maisons-balency.fr/informations-legales/. HEXAOM Services est enregistré auprès de l'ORIAS en tant que Courtier en financement, Niveau 1, sous le numéro 14001345.

Contactez l'agence de Ormoy

    * Champs obligatoires

    Vos informations sont traitées par HEXAOM et transmises à un conseiller commercial qui vous contactera afin de répondre à votre demande. Les plans et images présentés sur notre site sont la propriété d’HEXAOM et ne peuvent pas être reproduits sans son accord. Pour retrouver notre politique de protection des données personnelles et exercer vos droits conformément à la « loi informatique et liberté » cliquez-ici.

    Contacter

    Appeler

    Contactez l'agence de Ormoy

      * Champs obligatoires

      Vos informations sont traitées par HEXAOM et transmises à un conseiller commercial qui vous contactera afin de répondre à votre demande. Les plans et images présentés sur notre site sont la propriété d’HEXAOM et ne peuvent pas être reproduits sans son accord. Pour retrouver notre politique de protection des données personnelles et exercer vos droits conformément à la « loi informatique et liberté » cliquez-ici.