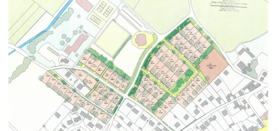
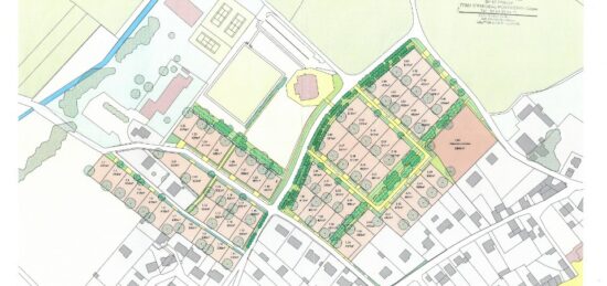
Terrain à bâtir à
Balagny-sur-Thérain
(60250)
- 113 000 €
- Surface : 1 000 m²
En collaboration avec nos partenaires fonciers, nous vous proposons une large sélection de terrains à vendre constructibles pour réaliser votre projet de maison neuve.
Parcourez les annonces, trouvez la vôtre et acheté le terrain en bâtir en lotissement ou en secteur diffus qui répondra à l’ensemble de vos critères et à votre budget.
11910 annonces identifiées